Secondary Storey

Bronte

2024

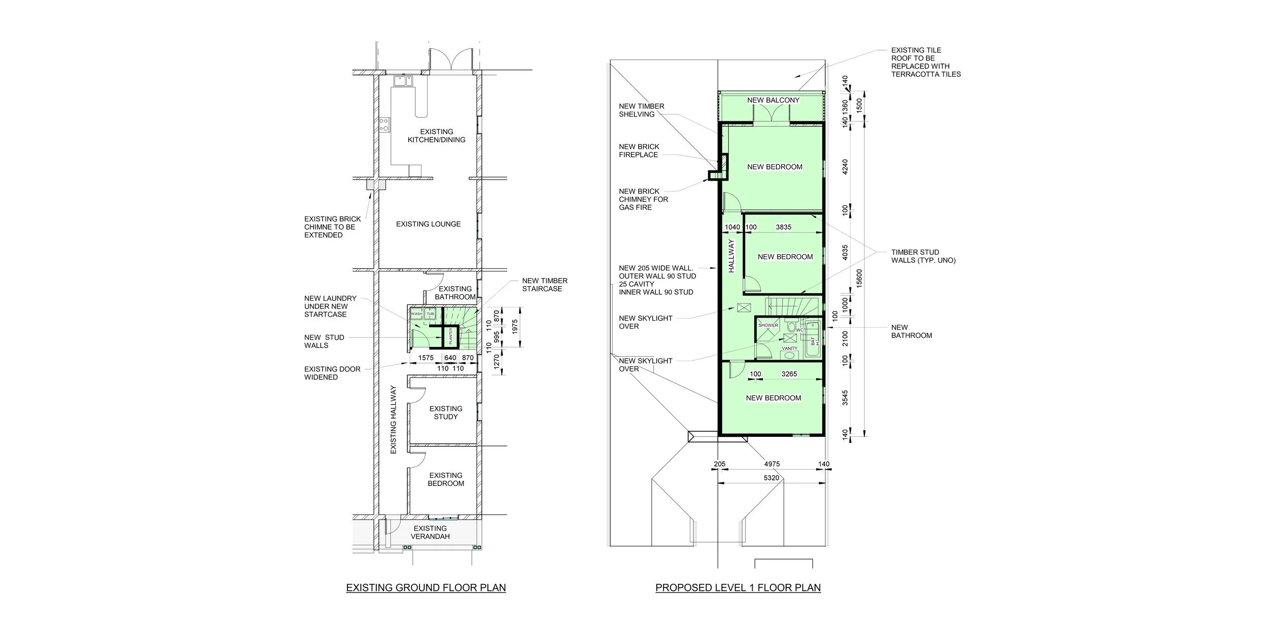
Perched in one of Sydney’s most sought-after beachside suburbs, this Bronte semi was reimagined with the addition of a second storey, bringing new life and functionality to a compact footprint. The design focused on enhancing ocean breezes, natural light, and family flow, while respecting the heritage character of the streetscape. The result is a seamless vertical extension that delivers generous living without compromising on charm or council compliance. - Conceptual design.