Beach House

Avalon Beach

2107

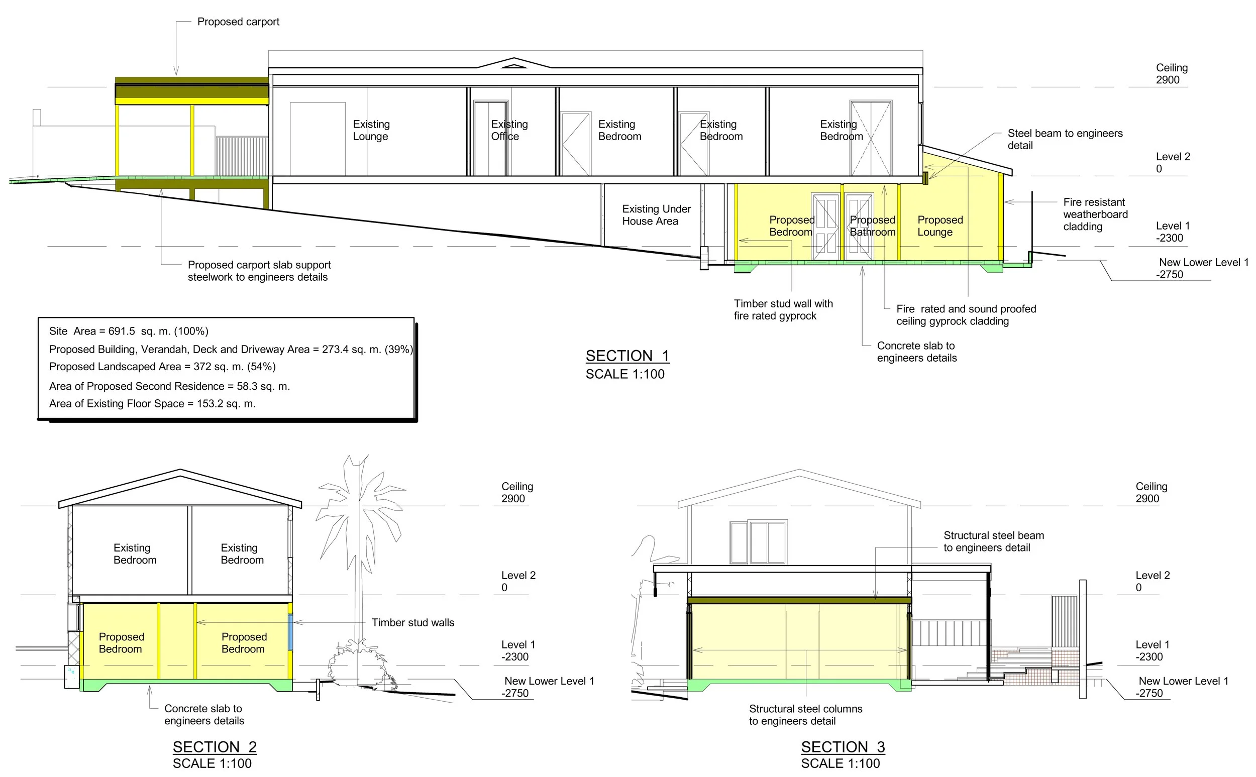
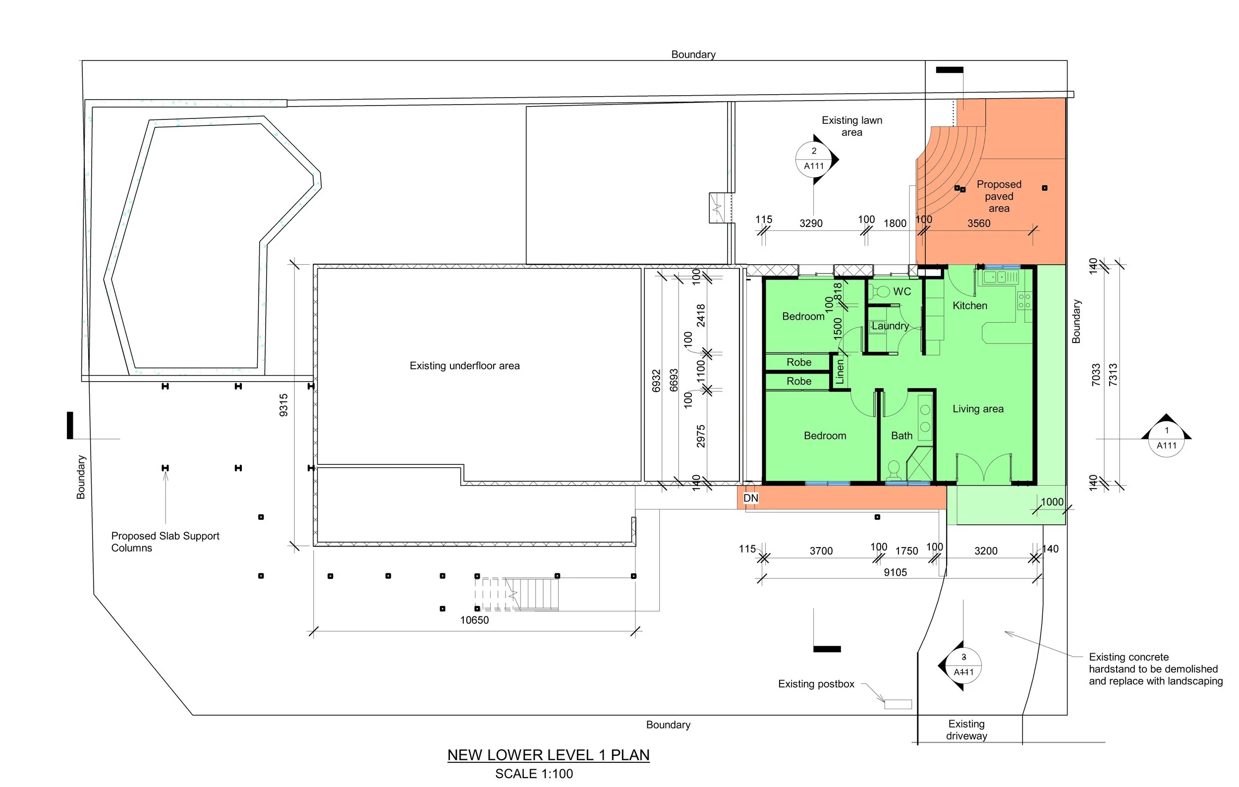
Nestled in the relaxed coastal surrounds of Avalon Beach, this secondary dwelling was designed to complement the existing property while maximising space, privacy, and natural light. The brief focused on creating a self-contained, functional layout ideal for extended family, guests, or rental opportunities. Every element, from orientation to materials, was carefully considered to blend with the laid-back coastal aesthetic, while meeting all requirements for a Complying Development Certificate.