Additions and Alterations

Avoca Beach

2251

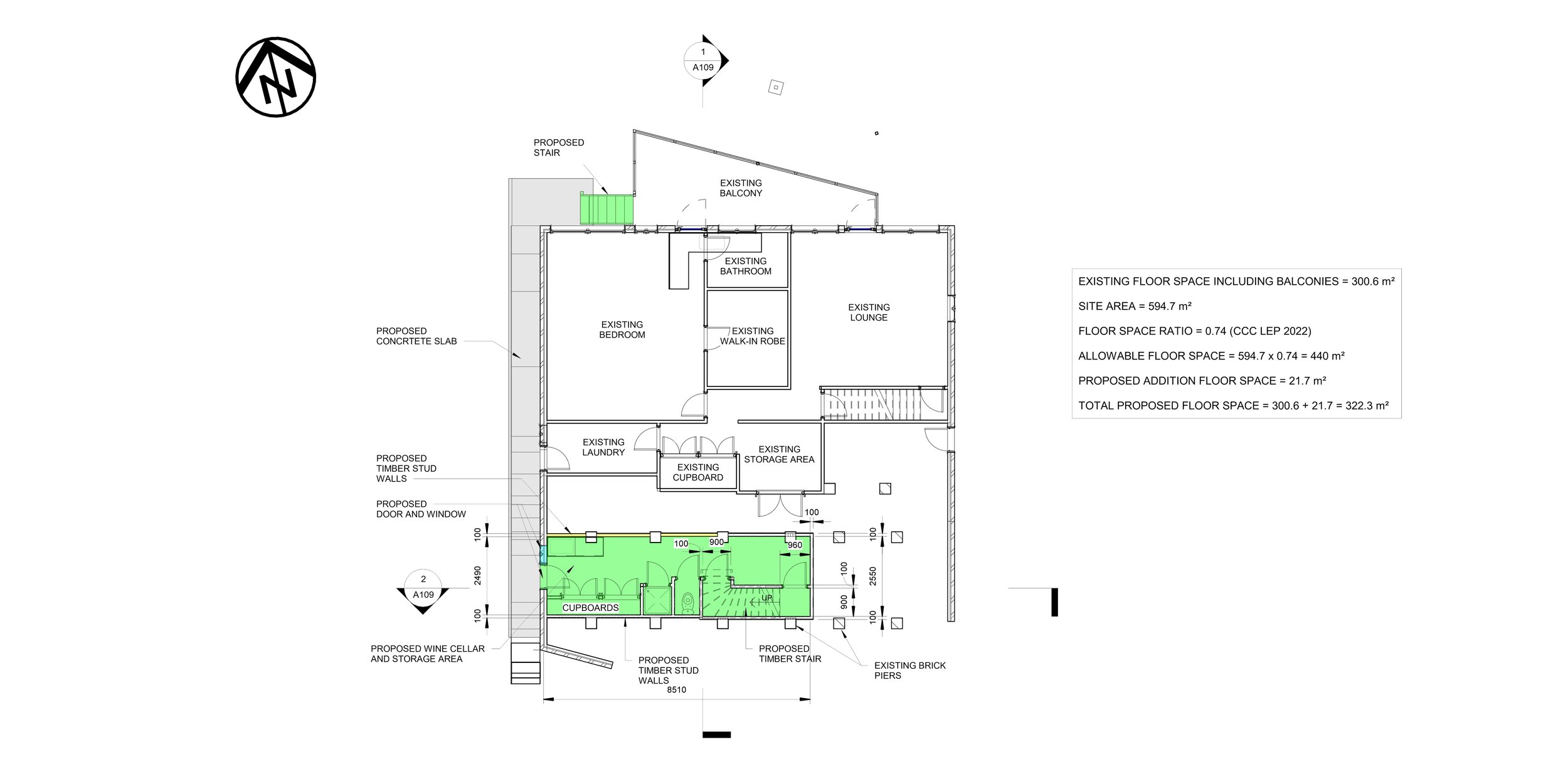
Set against the lush, laid-back backdrop of Avoca Beach, this residential upgrade involved thoughtful additions and internal reconfigurations to better suit modern living. The project balanced smart spatial planning with practical design enhancements, improving flow, comfort, and usability throughout. With a focus on cost-effective solutions and council-aligned planning, the transformation provides lasting value in a relaxed coastal setting.